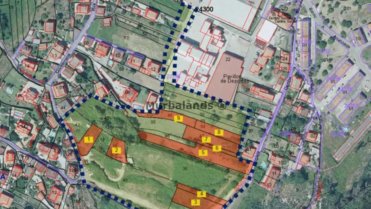
Terreno en BARRO PERI 04 - COVATERREÑA, PARCELA 11 1
Precio a consultar
Tipo de suelo | Terreno Suelo |
Superficie suelo | 5.907,00 m² |
Servicios Cercanos | Ver servicios cercanos |
Pais | España |
Provincia | Pontevedra |
Municipio | Baiona |
Calle | BARRO PERI 04 - COVATERREÑA, PARCELA 11 1 |
Referencia Catastral | Acción |
---|---|
2229632NG1622N0001SG | Ver cartografía catastral |
Referencia Catastral | Acción |
---|---|
2229632NG1622N0001SG | Imprimir ficha catastral |
Titularidad del Inmueble |
100 % |
Nº de viviendas a construir | 41 |
Aprobaciones Urbanísticas | Nombre | Fecha de aprobación |
---|
Profesional | Aliseda Inmobiliaria |
Descripción
Fotos




Terrenos cercanos
Contrata nuestros servicios y olvidate del papeleo y gestiones que ocupan gran parte de tu tiempo

Nota Simple
Solicitamos por ti la nota simple del Registro de la Propiedad. Obtén un resumen detallado de los datos registrados en el Registro de la Propiedad. La Nota Simple incluye información clave como identificación de la finca, ubicación, referencia catastral , características del terreno,nombre del propietario actual, cargas y gravámenes. Solicita tu Nota Simple y accede a la información esencial para tomar decisiones con total seguridad.
11,99 €
Información

11,99 €
Nota Simple
Solicitamos por ti la nota simple del Registro de la Propiedad. Obtén un resumen detallado de los datos registrados en el Registro de la Propiedad. La Nota Simple incluye información clave como identificación de la finca, ubicación, referencia catastral , características del terreno,nombre del propietario actual, cargas y gravámenes. Solicita tu Nota Simple y accede a la información esencial para tomar decisiones con total seguridad.
INSTRUCCIONES
Una vez realice el pago, enviaremos un email de confirmación a su correo electrónico con toda la información relacionada con el servicio que acaba de contratar.

Nota de localización de prestamistas
Solicitamos por ti la Nota de localización de prestamistas. Este tipo de publicidad, que tiene carácter meramente instrumental, informa del número de derechos de hipoteca vigentes que una persona física o jurídica tiene inscritos a su favor en todo el territorio nacional.
11,99 €
Información

11,99 €
Nota de localización de prestamistas
Solicitamos por ti la Nota de localización de prestamistas. Este tipo de publicidad, que tiene carácter meramente instrumental, informa del número de derechos de hipoteca vigentes que una persona física o jurídica tiene inscritos a su favor en todo el territorio nacional.
INSTRUCCIONES
Una vez realice el pago, enviaremos un email de confirmación a su correo electrónico con toda la información relacionada con el servicio que acaba de contratar.

Nota de Localización
Solicitamos por ti la nota de localización. Una Nota de Localización de Propiedades es un documento de carácter informativo que emite el Registro de la Propiedad a través del cual se informa de los Registros de la Propiedad en los que una persona o una empresa tiene algún derecho inscrito sobre alguna finca y propiedad. Solicitamos por ti la nota de localización.
11,99 €
Información

11,99 €
Nota de Localización
Solicitamos por ti la nota de localización. Una Nota de Localización de Propiedades es un documento de carácter informativo que emite el Registro de la Propiedad a través del cual se informa de los Registros de la Propiedad en los que una persona o una empresa tiene algún derecho inscrito sobre alguna finca y propiedad. Solicitamos por ti la nota de localización.
INSTRUCCIONES
Una vez realice el pago, enviaremos un email de confirmación a su correo electrónico con toda la información relacionada con el servicio que acaba de contratar.

Certificación de dominio
Solicitamos por ti la certificación de dominio.La certificación del dominio es un tipo de certificación registral que acredita ante terceros los datos del inmueble y su titularidad (es decir, quién es el propietario), se regula en el artículo 303 del Reglamento Hipotecario. Descripción (naturaleza, situación, superficie, linderos) y cargas de la finca. Certificación de dominio: comprende únicamente la última titularidad de dominio que se encuentre vigente.
11,99 €
Información

11,99 €
Certificación de dominio
Solicitamos por ti la certificación de dominio.La certificación del dominio es un tipo de certificación registral que acredita ante terceros los datos del inmueble y su titularidad (es decir, quién es el propietario), se regula en el artículo 303 del Reglamento Hipotecario. Descripción (naturaleza, situación, superficie, linderos) y cargas de la finca. Certificación de dominio: comprende únicamente la última titularidad de dominio que se encuentre vigente.
INSTRUCCIONES
Una vez realice el pago, enviaremos un email de confirmación a su correo electrónico con toda la información relacionada con el servicio que acaba de contratar.

Certificación de dominio y cargas
Solicitamos por ti la Certificación de dominio. La certificación del dominio es un tipo de certificación registral que acredita ante terceros los datos del inmueble y su titularidad (es decir, quién es el propietario), se regula en el artículo 303 del Reglamento Hipotecario. Descripción (naturaleza, situación, superficie, linderos) y cargas de la finca. Certificación de dominio: comprende únicamente la última titularidad de dominio que se encuentre vigente. Comprende, además del dominio, todas las cargas o gravámenes existentes sobre la finca y que estén vigentes.
30,95 €
Información

30,95 €
Certificación de dominio y cargas
Solicitamos por ti la Certificación de dominio. La certificación del dominio es un tipo de certificación registral que acredita ante terceros los datos del inmueble y su titularidad (es decir, quién es el propietario), se regula en el artículo 303 del Reglamento Hipotecario. Descripción (naturaleza, situación, superficie, linderos) y cargas de la finca. Certificación de dominio: comprende únicamente la última titularidad de dominio que se encuentre vigente. Comprende, además del dominio, todas las cargas o gravámenes existentes sobre la finca y que estén vigentes.
INSTRUCCIONES
Una vez realice el pago, enviaremos un email de confirmación a su correo electrónico con toda la información relacionada con el servicio que acaba de contratar.

Certificación literal
Solicitamos por ti la certificación literal. La certificación registral, también conocida como nota registral completa o certificación literal, es un documento público expedido por el Registro de la Propiedad que da fe del contenido íntegro de la información relativa a una finca o inmueble. Comprende íntegramente los asientos a los que se refiere (artículo 232 Ley Hipotecaria).
11,99 €
Información

11,99 €
Certificación literal
Solicitamos por ti la certificación literal. La certificación registral, también conocida como nota registral completa o certificación literal, es un documento público expedido por el Registro de la Propiedad que da fe del contenido íntegro de la información relativa a una finca o inmueble. Comprende íntegramente los asientos a los que se refiere (artículo 232 Ley Hipotecaria).
INSTRUCCIONES
Una vez realice el pago, enviaremos un email de confirmación a su correo electrónico con toda la información relacionada con el servicio que acaba de contratar.

Cédula urbanistica
¡Solicitamos por ti la Cédula Urbanística! La Cédula Urbanística es un documento clave que proporciona información detallada sobre un terreno o parcela, incluyendo: ¿Qué datos contiene? 1. Tamaño, forma y ubicación del terreno. 2. Uso permitido según la normativa urbanística vigente. 3. Limitaciones y posibilidades de desarrollo de la propiedad. 4. Requisitos para obtener permisos de construcción y realizar actividades en el terreno. ¿Por qué es importante?Es esencial para conocer las posibilidades reales de un terreno antes de invertir o desarrollar un proyecto. Importante: La Cédula Urbanística no puede solicitarse para terrenos rústicos, solo para terrenos finalistas o en gestión con un plan de ordenación urbanística aprobado. El tiempo de obtención varía según el Ayuntamiento. Déjanos gestionar la solicitud por ti y obtén la información que necesitas sin complicaciones.
275,00 €
Información

275,00 €
Cédula urbanistica
¡Solicitamos por ti la Cédula Urbanística! La Cédula Urbanística es un documento clave que proporciona información detallada sobre un terreno o parcela, incluyendo: ¿Qué datos contiene? 1. Tamaño, forma y ubicación del terreno. 2. Uso permitido según la normativa urbanística vigente. 3. Limitaciones y posibilidades de desarrollo de la propiedad. 4. Requisitos para obtener permisos de construcción y realizar actividades en el terreno. ¿Por qué es importante?Es esencial para conocer las posibilidades reales de un terreno antes de invertir o desarrollar un proyecto. Importante: La Cédula Urbanística no puede solicitarse para terrenos rústicos, solo para terrenos finalistas o en gestión con un plan de ordenación urbanística aprobado. El tiempo de obtención varía según el Ayuntamiento. Déjanos gestionar la solicitud por ti y obtén la información que necesitas sin complicaciones.
INSTRUCCIONES
Una vez realice el pago, enviaremos un email de confirmación a su correo electrónico con toda la información relacionada con el servicio que acaba de contratar.

Informe del terreno básico
¿No tienes claro qué se puede construir o hacer en un terreno? Si necesitas información preliminar antes de invertir o desarrollar un proyecto, en Murbalands te ofrecemos la solución. Obtén un informe básico del terreno con datos clave sobre: Clasificación y categorización del suelo, Usos principales permitidos, Edificabilidad y normativas urbanísticas, Ordenanzas municipales aplicables, Servicios públicos disponibles en la zona. Con esta información, podrás tomar decisiones seguras y planificar tu proyecto con claridad. Contráta tu informe básico del terreno para estar informado.
425,00 €
Información

425,00 €
Informe del terreno básico
¿No tienes claro qué se puede construir o hacer en un terreno? Si necesitas información preliminar antes de invertir o desarrollar un proyecto, en Murbalands te ofrecemos la solución. Obtén un informe básico del terreno con datos clave sobre: Clasificación y categorización del suelo, Usos principales permitidos, Edificabilidad y normativas urbanísticas, Ordenanzas municipales aplicables, Servicios públicos disponibles en la zona. Con esta información, podrás tomar decisiones seguras y planificar tu proyecto con claridad. Contráta tu informe básico del terreno para estar informado.
INSTRUCCIONES
Una vez realice el pago, enviaremos un email de confirmación a su correo electrónico con toda la información relacionada con el servicio que acaba de contratar.

Contacto Asesoramiento urbanistico
¿Necesitas asesoramiento urbanístico para tu terreno? En Murbalands, te conectamos con un asesor urbanístico experto que te guiará en cada paso, resolviendo todas tus dudas y ayudándote con trámites y gestiones clave. ¿En qué te podemos ayudar? 1. Normativa y regulaciones urbanísticas aplicables a tu terreno, 2. Gestión de permisos y licencias para desarrollos y construcciones; 3. Análisis de viabilidad urbanística y posibles usos del suelo; 4. Resolución de dudas legales sobre terrenos y proyectos inmobiliarios. No dejes pasar más tiempo. Asegúrate de contar con toda la información necesaria para llevar a cabo tus proyectos de forma legal y segura. ¡Contrátalo ahora! y te ponemos en manos de un experto.
1,00 €
Información

1,00 €
Contacto Asesoramiento urbanistico
¿Necesitas asesoramiento urbanístico para tu terreno? En Murbalands, te conectamos con un asesor urbanístico experto que te guiará en cada paso, resolviendo todas tus dudas y ayudándote con trámites y gestiones clave. ¿En qué te podemos ayudar? 1. Normativa y regulaciones urbanísticas aplicables a tu terreno, 2. Gestión de permisos y licencias para desarrollos y construcciones; 3. Análisis de viabilidad urbanística y posibles usos del suelo; 4. Resolución de dudas legales sobre terrenos y proyectos inmobiliarios. No dejes pasar más tiempo. Asegúrate de contar con toda la información necesaria para llevar a cabo tus proyectos de forma legal y segura. ¡Contrátalo ahora! y te ponemos en manos de un experto.
INSTRUCCIONES
Una vez realice el pago, enviaremos un email de confirmación a su correo electrónico con toda la información relacionada con el servicio que acaba de contratar.

Contacto intermediario
Te proporcionamos los datos de un intermediario de confianza para que puedas ponerte en contacto con él. Asimismo, le enviaremos tus datos para que también se ponga en contacto contigo.¡Nosotros hacemos el análisis por ti!
1,00 €
Información

1,00 €
Contacto intermediario
Te proporcionamos los datos de un intermediario de confianza para que puedas ponerte en contacto con él. Asimismo, le enviaremos tus datos para que también se ponga en contacto contigo.¡Nosotros hacemos el análisis por ti!
INSTRUCCIONES
Una vez realice el pago, enviaremos un email de confirmación a su correo electrónico con toda la información relacionada con el servicio que acaba de contratar.

Análisis de la competencia
¡Analizamos la competencia por ti! Te ofrecemos un informe detallado sobre la oferta disponible en el mercado con características similares a tu inmueble publicado en nuestro portal inmobiliario. ¿Qué incluye el informe? Cantidad de activos similares publicados en la web, Precios y ubicaciones de los inmuebles comparables, Análisis de competencia, para que conozcas el posicionamiento de tu propiedad en el mercado. Toma decisiones informadas y ajusta tu estrategia de venta con datos reales. ¡Nosotros hacemos el análisis por ti!
9,95 €
Información

9,95 €
Análisis de la competencia
¡Analizamos la competencia por ti! Te ofrecemos un informe detallado sobre la oferta disponible en el mercado con características similares a tu inmueble publicado en nuestro portal inmobiliario. ¿Qué incluye el informe? Cantidad de activos similares publicados en la web, Precios y ubicaciones de los inmuebles comparables, Análisis de competencia, para que conozcas el posicionamiento de tu propiedad en el mercado. Toma decisiones informadas y ajusta tu estrategia de venta con datos reales. ¡Nosotros hacemos el análisis por ti!
INSTRUCCIONES
Una vez realice el pago, enviaremos un email de confirmación a su correo electrónico con toda la información relacionada con el servicio que acaba de contratar.

Análisis de la Oferta y Competencia
¡Analizamos la competencia por ti! Te ofrecemos un informe detallado sobre la oferta disponible en el mercado con características similares a tu inmueble publicado en nuestro portal inmobiliario. ¿Qué incluye el informe? Cantidad de activos similares publicados en la web, Precios y ubicaciones de los inmuebles comparables, Análisis de competencia, para que conozcas el posicionamiento de tu propiedad en el mercado. Toma decisiones informadas y ajusta tu estrategia de venta con datos reales. ¡Nosotros hacemos el análisis por ti!
14,95 €
Información

14,95 €
Análisis de la Oferta y Competencia
¡Analizamos la competencia por ti! Te ofrecemos un informe detallado sobre la oferta disponible en el mercado con características similares a tu inmueble publicado en nuestro portal inmobiliario. ¿Qué incluye el informe? Cantidad de activos similares publicados en la web, Precios y ubicaciones de los inmuebles comparables, Análisis de competencia, para que conozcas el posicionamiento de tu propiedad en el mercado. Toma decisiones informadas y ajusta tu estrategia de venta con datos reales. ¡Nosotros hacemos el análisis por ti!
INSTRUCCIONES
Una vez realice el pago, enviaremos un email de confirmación a su correo electrónico con toda la información relacionada con el servicio que acaba de contratar.

Nº de publicaciones que existe sobre el mismo inmueble
¡Detectamos publicaciones duplicadas de un inmueble!. ¿Para qué sirve? Identifica si otras personas están publicando el mismo inmueble y a qué precios; Descubre si existen otros porcentajes del inmueble en venta; Si solo posees una parte, te ayudamos a saber si otros titulares también están vendiendo. ¿Qué información te ofrecemos? Número de publicaciones detectadas sobre la misma finca registral; Precios publicados en cada una de ellas; Enlace a dichas publicaciones, para que puedas contactar con los propietarios de los demás anuncios. Evita confusiones y gestiona mejor tu propiedad con información clara y actualizada. ¡Nosotros lo analizamos por ti!
2,99 €
Información

2,99 €
Nº de publicaciones que existe sobre el mismo inmueble
¡Detectamos publicaciones duplicadas de un inmueble!. ¿Para qué sirve? Identifica si otras personas están publicando el mismo inmueble y a qué precios; Descubre si existen otros porcentajes del inmueble en venta; Si solo posees una parte, te ayudamos a saber si otros titulares también están vendiendo. ¿Qué información te ofrecemos? Número de publicaciones detectadas sobre la misma finca registral; Precios publicados en cada una de ellas; Enlace a dichas publicaciones, para que puedas contactar con los propietarios de los demás anuncios. Evita confusiones y gestiona mejor tu propiedad con información clara y actualizada. ¡Nosotros lo analizamos por ti!
INSTRUCCIONES
Una vez realice el pago, enviaremos un email de confirmación a su correo electrónico con toda la información relacionada con el servicio que acaba de contratar.

Valoración del Inmueble Catastral
¡Solicitamos por ti el valor mínimo catastral!. En Murbalands, gestionamos la solicitud del valor mínimo catastral directamente con el Catastro, un registro público que contiene la información de todos los bienes inmuebles en un territorio determinado. ¿Para qué sirve la valoración catastral? Cálculo de la plusvalía municipal en caso de venta del inmueble o como Base imponible para impuestos municipales, ya que el Ayuntamiento la utiliza para determinar el importe mínimo sobre el que aplicar tributos. Obtén esta información de manera rápida y sencilla con Murbalands y evita sorpresas en tus impuestos.
1,50 €
Información

1,50 €
Valoración del Inmueble Catastral
¡Solicitamos por ti el valor mínimo catastral!. En Murbalands, gestionamos la solicitud del valor mínimo catastral directamente con el Catastro, un registro público que contiene la información de todos los bienes inmuebles en un territorio determinado. ¿Para qué sirve la valoración catastral? Cálculo de la plusvalía municipal en caso de venta del inmueble o como Base imponible para impuestos municipales, ya que el Ayuntamiento la utiliza para determinar el importe mínimo sobre el que aplicar tributos. Obtén esta información de manera rápida y sencilla con Murbalands y evita sorpresas en tus impuestos.
INSTRUCCIONES
Una vez realice el pago, enviaremos un email de confirmación a su correo electrónico con toda la información relacionada con el servicio que acaba de contratar.

Contrato de Compraventa
¿Necesitas un Contrato de Compraventa? ¡Murbalands te lo pone fácil! Simplifica y agiliza el proceso de compraventa de terrenos u obras paradas con nuestro modelo de contrato listo para usar. ¿Cómo funciona? Contrato profesional y estructurado, listo para completar con los datos del inmueble y el precio. Redactado conforme a la normativa vigente, asegurando una transacción segura. Listo para firmar, sin complicaciones ni pérdidas de tiempo. No pierdas tiempo en los detalles. Confía en nosotros y asegura una compraventa rápida y eficiente. Contrata nuestro servico ahora y recibe un contrato de compraventa.
2,00 €
Información

2,00 €
Contrato de Compraventa
¿Necesitas un Contrato de Compraventa? ¡Murbalands te lo pone fácil! Simplifica y agiliza el proceso de compraventa de terrenos u obras paradas con nuestro modelo de contrato listo para usar. ¿Cómo funciona? Contrato profesional y estructurado, listo para completar con los datos del inmueble y el precio. Redactado conforme a la normativa vigente, asegurando una transacción segura. Listo para firmar, sin complicaciones ni pérdidas de tiempo. No pierdas tiempo en los detalles. Confía en nosotros y asegura una compraventa rápida y eficiente. Contrata nuestro servico ahora y recibe un contrato de compraventa.
INSTRUCCIONES
Una vez realice el pago, enviaremos un email de confirmación a su correo electrónico con toda la información relacionada con el servicio que acaba de contratar.

Contrato de Alquiler
¿Necesitas un Contrato de Alquiler o Arrendamiento? ¡Murbalands te lo pone fácil! Simplifica y agiliza el proceso de alquiler de terrenos u obras paradas con nuestro modelo de contrato listo para usar. ¿Cómo funciona? Contrato profesional y estructurado, listo listo para introducir los datos del inmueble, renta y a firmar. Redactado conforme a la normativa vigente, asegurando una transacción segura. Listo para firmar, sin complicaciones ni pérdidas de tiempo. No pierdas tiempo en los detalles. Confía en nosotros y asegura un alquiler rápido y eficiente. Contrata nuestro servico ahora y recibe un contrato de alquler.
2,00 €
Información

2,00 €
Contrato de Alquiler
¿Necesitas un Contrato de Alquiler o Arrendamiento? ¡Murbalands te lo pone fácil! Simplifica y agiliza el proceso de alquiler de terrenos u obras paradas con nuestro modelo de contrato listo para usar. ¿Cómo funciona? Contrato profesional y estructurado, listo listo para introducir los datos del inmueble, renta y a firmar. Redactado conforme a la normativa vigente, asegurando una transacción segura. Listo para firmar, sin complicaciones ni pérdidas de tiempo. No pierdas tiempo en los detalles. Confía en nosotros y asegura un alquiler rápido y eficiente. Contrata nuestro servico ahora y recibe un contrato de alquler.
INSTRUCCIONES
Una vez realice el pago, enviaremos un email de confirmación a su correo electrónico con toda la información relacionada con el servicio que acaba de contratar.

Modelo de oferta
¿Quieres hacer una oferta y no sabes cómo? ¡Te ayudamos! En Murbalands, hemos creado un modelo de oferta que simplifica el proceso para que puedas presentar tu propuesta de forma rápida y efectiva. ¿Cómo funciona? Modelo listo para usar, solo completa los datos del inmueble y el precio. Redactado conforme a la normativa, asegurando una oferta clara y formal. Rápido y eficiente, sin complicaciones ni preocupaciones. Olvídate de los detalles y asegura una transacción exitosa. Contrata este servicio y mo pierdas más tiempo, haz tu oferta ahora con Murbalands.
2,00 €
Información

2,00 €
Modelo de oferta
¿Quieres hacer una oferta y no sabes cómo? ¡Te ayudamos! En Murbalands, hemos creado un modelo de oferta que simplifica el proceso para que puedas presentar tu propuesta de forma rápida y efectiva. ¿Cómo funciona? Modelo listo para usar, solo completa los datos del inmueble y el precio. Redactado conforme a la normativa, asegurando una oferta clara y formal. Rápido y eficiente, sin complicaciones ni preocupaciones. Olvídate de los detalles y asegura una transacción exitosa. Contrata este servicio y mo pierdas más tiempo, haz tu oferta ahora con Murbalands.
INSTRUCCIONES
Una vez realice el pago, enviaremos un email de confirmación a su correo electrónico con toda la información relacionada con el servicio que acaba de contratar.

Modelo de aceptacion de oferta
¿Has recibido una oferta por tu inmueble y no sabes cómo responder? ¡Te ayudamos! En Murbalands, te proporcionamos un modelo de aceptación de oferta para que puedas responder de manera formal y clara. ¿Cómo funciona? Modelo listo para usar, solo completa las condiciones acordadas. Redactado conforme a la normativa, asegurando una comunicación profesional. Rápido y efectivo, sin complicaciones ni preocupaciones. Simplifica el proceso y asegura una transacción exitosa. Contrátalo ahora y responde con confianza a la oferta de tu inmueble.
2,00 €
Información

2,00 €
Modelo de aceptacion de oferta
¿Has recibido una oferta por tu inmueble y no sabes cómo responder? ¡Te ayudamos! En Murbalands, te proporcionamos un modelo de aceptación de oferta para que puedas responder de manera formal y clara. ¿Cómo funciona? Modelo listo para usar, solo completa las condiciones acordadas. Redactado conforme a la normativa, asegurando una comunicación profesional. Rápido y efectivo, sin complicaciones ni preocupaciones. Simplifica el proceso y asegura una transacción exitosa. Contrátalo ahora y responde con confianza a la oferta de tu inmueble.
INSTRUCCIONES
Una vez realice el pago, enviaremos un email de confirmación a su correo electrónico con toda la información relacionada con el servicio que acaba de contratar.

Contrato de Comercialización
¿Quieres contratar formalmente a un intermediario para comercializar tu inmueble? En Murbalands, te ofrecemos la solución perfecta: nuestro modelo de contrato de comercialización simplifica todo el proceso para que puedas formalizar el acuerdo de manera rápida y segura. ¿Cómo funciona? Modelo listo para usar, solo completa los datos del intermediario, los tuyos, la información del inmueble y las condiciones acordadas. Redactado conforme a la normativa, garantizando un acuerdo claro y seguro. Rápido y eficiente, sin complicaciones ni preocupaciones. Confía en nosotros para asegurar una comercialización exitosa. Contrátalo ahora y gestiona la venta de tu inmueble de manera profesional.
2,00 €
Información

2,00 €
Contrato de Comercialización
¿Quieres contratar formalmente a un intermediario para comercializar tu inmueble? En Murbalands, te ofrecemos la solución perfecta: nuestro modelo de contrato de comercialización simplifica todo el proceso para que puedas formalizar el acuerdo de manera rápida y segura. ¿Cómo funciona? Modelo listo para usar, solo completa los datos del intermediario, los tuyos, la información del inmueble y las condiciones acordadas. Redactado conforme a la normativa, garantizando un acuerdo claro y seguro. Rápido y eficiente, sin complicaciones ni preocupaciones. Confía en nosotros para asegurar una comercialización exitosa. Contrátalo ahora y gestiona la venta de tu inmueble de manera profesional.
INSTRUCCIONES
Una vez realice el pago, enviaremos un email de confirmación a su correo electrónico con toda la información relacionada con el servicio que acaba de contratar.

Contrato de Arras
¡Simplifica la compraventa con un contrato de arras! Agiliza el proceso de compraventa de terrenos u obras paradas con un contrato de arras que garantice seguridad y compromiso en la operación. ¿Cómo te ayudamos? Modelo de contrato listo para usar, solo introduce los datos del inmueble y el precio. Estructura clara y conforme a la normativa, asegurando una transacción segura. Proceso rápido y sin complicaciones, para que ambas partes firmen con confianza. No pierdas tiempo en los detalles, asegúrate de cerrar la operación de forma segura y efectiva. Contrátalo, y tendrás tu contrato de arras ahora para gestiona tu compraventa con mayor tranquilidad.
2,00 €
Información

2,00 €
Contrato de Arras
¡Simplifica la compraventa con un contrato de arras! Agiliza el proceso de compraventa de terrenos u obras paradas con un contrato de arras que garantice seguridad y compromiso en la operación. ¿Cómo te ayudamos? Modelo de contrato listo para usar, solo introduce los datos del inmueble y el precio. Estructura clara y conforme a la normativa, asegurando una transacción segura. Proceso rápido y sin complicaciones, para que ambas partes firmen con confianza. No pierdas tiempo en los detalles, asegúrate de cerrar la operación de forma segura y efectiva. Contrátalo, y tendrás tu contrato de arras ahora para gestiona tu compraventa con mayor tranquilidad.
INSTRUCCIONES
Una vez realice el pago, enviaremos un email de confirmación a su correo electrónico con toda la información relacionada con el servicio que acaba de contratar.

Contrato de Reserva
¡Simplifica la compraventa con un contrato de Reserva! Agiliza el proceso de compraventa de terrenos u obras paradas con un contrato de reserva que garantice seguridad y compromiso en la operación. ¿Cómo te ayudamos? Modelo de contrato listo para usar, solo introduce los datos del inmueble y el precio. Estructura clara y conforme a la normativa, asegurando una transacción segura. Proceso rápido y sin complicaciones, para que ambas partes firmen con confianza. No pierdas tiempo en los detalles, asegúrate de cerrar la operación de forma segura y efectiva. Contrátalo, y tendrás tu contrato de reserva ahora para gestiona tu compraventa con mayor tranquilidad.
2,00 €
Información

2,00 €
Contrato de Reserva
¡Simplifica la compraventa con un contrato de Reserva! Agiliza el proceso de compraventa de terrenos u obras paradas con un contrato de reserva que garantice seguridad y compromiso en la operación. ¿Cómo te ayudamos? Modelo de contrato listo para usar, solo introduce los datos del inmueble y el precio. Estructura clara y conforme a la normativa, asegurando una transacción segura. Proceso rápido y sin complicaciones, para que ambas partes firmen con confianza. No pierdas tiempo en los detalles, asegúrate de cerrar la operación de forma segura y efectiva. Contrátalo, y tendrás tu contrato de reserva ahora para gestiona tu compraventa con mayor tranquilidad.
INSTRUCCIONES
Una vez realice el pago, enviaremos un email de confirmación a su correo electrónico con toda la información relacionada con el servicio que acaba de contratar.
CONTACTAR
Ref. del anuncio 00003293
IMPORTANTE
Información

- Te avisamos si ha bajado el precio
- Te notificamos los cambios más relevantes
Realiza una oferta ahora
Contacta ahora
Tu mensaje se ha enviado con éxito
Hemos creado una alerta con filtros similares a los del anuncio. Consúltalas en mis alertas.
¡Bienvenido a Murbalands!
¡Te echamos de menos!
Inicia sesión en Murbalands y podrás:
Crear alertas y recibir novedades.
Marcar tus anuncios favoritos.
Hablar con los anunciantes en nuestro chat.
Completa tu contraseña:
Revisa tu correo. Hemos enviado un Email para generes una nueva contraseña y poder acceder.
Contacta ahora
Ref:
No te olvides de mencionar que encontraste este anuncio en Murbalands